Projetos

Habitação própria - Cozinha

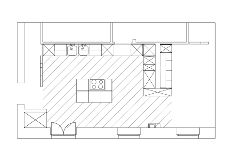
Partilhámos este estudo luminotécnico realizado para um cliente que acabou de remodelar a habitação e que tinha como objetivos:

– Acrescentar iluminação moderna e simples de acordo com a mudança de design da cozinha

5 luminárias salientes

Foram instaladas 5 luminárias salientes em perfil de alumínio extrudido anodizado, foi a solução encontrada e que melhor se enquadrou com o projeto.

Parâmetros

Área Trabalho, Resumo, Luminárias (Localização), Representação 3D, Superfícies da sala, Plano de uso, Gráfico de valores

Está interessado em fazer
um Estudo Luminotécnico?

Na Siluz contará com um serviço personalizado e completo que lhe proporcionará funcionalidade, eficiência energética.

string(72) "-webkit-border-radius: 55%; -moz-border-radius: 55%; border-radius: 55%;"